Dana–Thomas House

Susan Lawrence Dana House
Dana-Thomas House
Dana–Thomas House is located in Illinois
Dana–Thomas House
Dana–Thomas House is located in the United States
Dana–Thomas House
Interactive map showing the Dana-Thomas House’s location
Location301 East Lawrence Avenue, Springfield, Illinois
Coordinates39°47′39.6″N 89°39′05.0″W / 39.794333°N 89.651389°W / 39.794333; -89.651389
Built1902
ArchitectFrank Lloyd Wright
NRHP reference No.74000774[1]
Significant dates
Added to NRHPJuly 30, 1974
Designated NHLJanuary 7, 1976[2]

The Dana–Thomas House (also known as the Susan Lawrence Dana House and Dana House) is a Prairie School–style home at 301 East Lawrence Avenue in Springfield, Illinois, designed by architect Frank Lloyd Wright. It was built in 1902–1904 for the philanthropist Susan Lawrence Dana. The home reflects the mutual affection of the patron and the architect for organic architecture, the relatively flat landscape of the U.S. state of Illinois, and the Japanese aesthetic as expressed in Japanese prints.[3]

Context

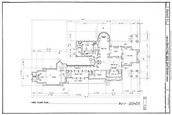
First floor plan for the Dana–Thomas House

Susan Lawrence Dana (1862–1946) was an independent-minded woman and heiress to a substantial fortune, including silver mines in the Rocky Mountains. Widowed in 1900, Dana enjoyed complete control over her household and fortune. Eager to express her personality and become a leading philanthropic figure in Springfield, Dana decided to completely remodel her family's Italianate mansion located in the state capital's fashionable "Aristocracy Hill" neighborhood.

Development

Dana's search for an architect to match her aspirations ended when she was introduced in 1902 to Frank Lloyd Wright, the rising leader of the new Prairie School movement of "organic architecture" which stressed congruence between the interior of a building and its surroundings. The Dana commission to plan the remodeling of the Lawrences' Italianate mansion was the largest Wright had received. Recognizing a kindred spirit in Mrs. Dana, he expanded the boundaries of his contract to design and build what was, in effect, an entirely new house showcasing his approach to the Prairie Style aesthetic.

Exterior window detail

The new home reflected the flamboyant personalities of the patron and the architect, particularly their love of Japanese prints and drawings. The structure was designed for both display and entertainment. An arched doorway admitted guests into a series of expanding spaces, transitioning from vestibule to the reception hall.

The concept of "expanding space" was repeated throughout the house,[3] with windows placed to continually draw the attention of someone within toward an awareness of the outside. Wright designed approximately 450 art glass windows, skylights, door panels, sconces, and light fixtures for the house, most of which survive. Much of the art glass, and the mural by George Mann Niedecken surmounting the dining room interior, centered on a sumac motif.

Gallery interior with barrel vault ceiling

A substantial west wing leads visitors through an interior Torii gate-like hallway into two of the largest rooms in the house. The upper-level gallery was used for musical entertaining, and the ground-level library contains special easels, part of more than 100 pieces of free-standing Wright-designed white oak furniture in the house, created for Dana to display selections from her collection of Japanese prints.

Susan Dana lived in the home from 1904 until about 1928. Once a successful hostess and leader of Springfield's social scene, she became increasingly reclusive over time and turned her attention to spiritualism and the occult. Suffering from increasing financial constraints in her later years, she closed the main house around 1928 and moved to a house across the street.[4] The property remained empty until 1944. As Dana struggled with age-related dementia, the home and its contents were sold in to Charles C. Thomas in 1944.[4]

Later history

South and East exterior elevations

Charles C. Thomas, a successful medical publisher, was the second owner and custodian of the home from 1944 to his death in 1969. A view of the building was featured on the title pages of some of his publications. His wife Nanette maintained in that role until she died in 1975. The couple are credited with maintaining the house's original furnishings and design, and their estate with selling the home and its furnishings as a unit to the state of Illinois in 1981 for $1.0 million, significantly less than could have been earned had the household been broken up.[3]

The home became a state historic site under the Illinois Historic Preservation Agency (IHPA). The IHPA led a restoration effort in 1987–1990 that restored the structure and its contents to its appearance in 1910. It is believed to contain one of the most intact Frank Lloyd Wright designed interiors in the United States.[3] Restoration plans and documents are held by the Ryerson & Burnham Libraries at the Art Institute of Chicago.

The house was featured in Bob Vila's A&E Network 1996 production, Guide to Historic Homes of America.[5] In celebration of the 2018 Illinois Bicentennial, the Dana Thomas House was selected as one of the Illinois 200 Great Places [6] by the American Institute of Architects Illinois component (AIA Illinois).

As part of a program of budget cuts, the state of Illinois temporarily closed the Dana–Thomas House to the public from December 1, 2008, until April 23, 2009.[3][7] The Dana–Thomas House again closed for 11 months in 2011 for renovations to interior and exterior finish as well as mechanical and security systems.[8]

See also

References

  1. ^ "National Register Information System". National Register of Historic Places. National Park Service. January 23, 2007.
  2. ^ "Dana, Susan Lawrence, House". National Historic Landmark summary listing. National Park Service. Archived from the original on March 3, 2008. Retrieved July 20, 2008.
  3. ^ a b c d e "Doors close at Dana–Thomas House". Springfield, Ill. State Journal-Register. December 1, 2008.
  4. ^ a b Cavanaugh, Tom R. and Payne E.L. Thomas (1970). Bannerstone House. Springfield IL: Thomas Books. ISBN 0-398-00299-1.
  5. ^ Bob Vila (1996). "Guide to Historic Homes of America". A&E Network. Archived from the original on November 2, 2010. Retrieved August 6, 2007.
  6. ^ Waldinger, Mike (January 30, 2018). "The proud history of architecture in Illinois". Springfield Business Journal. Retrieved January 30, 2018.
  7. ^ "Illinois to close historic sites, parks due to budget shortfall". USA Today/Associated Press. November 28, 2008.
  8. ^ Chris, Dettro (November 30, 2011). "Dana–Thomas House work mostly behind the scenes". The State Journal-Register. Retrieved December 4, 2011.